Would you like to visit us?
Contact Us
Spaces
About Us
Method
Contact
Contact
Method
About Us
Spaces
SPACES
KITCHEN
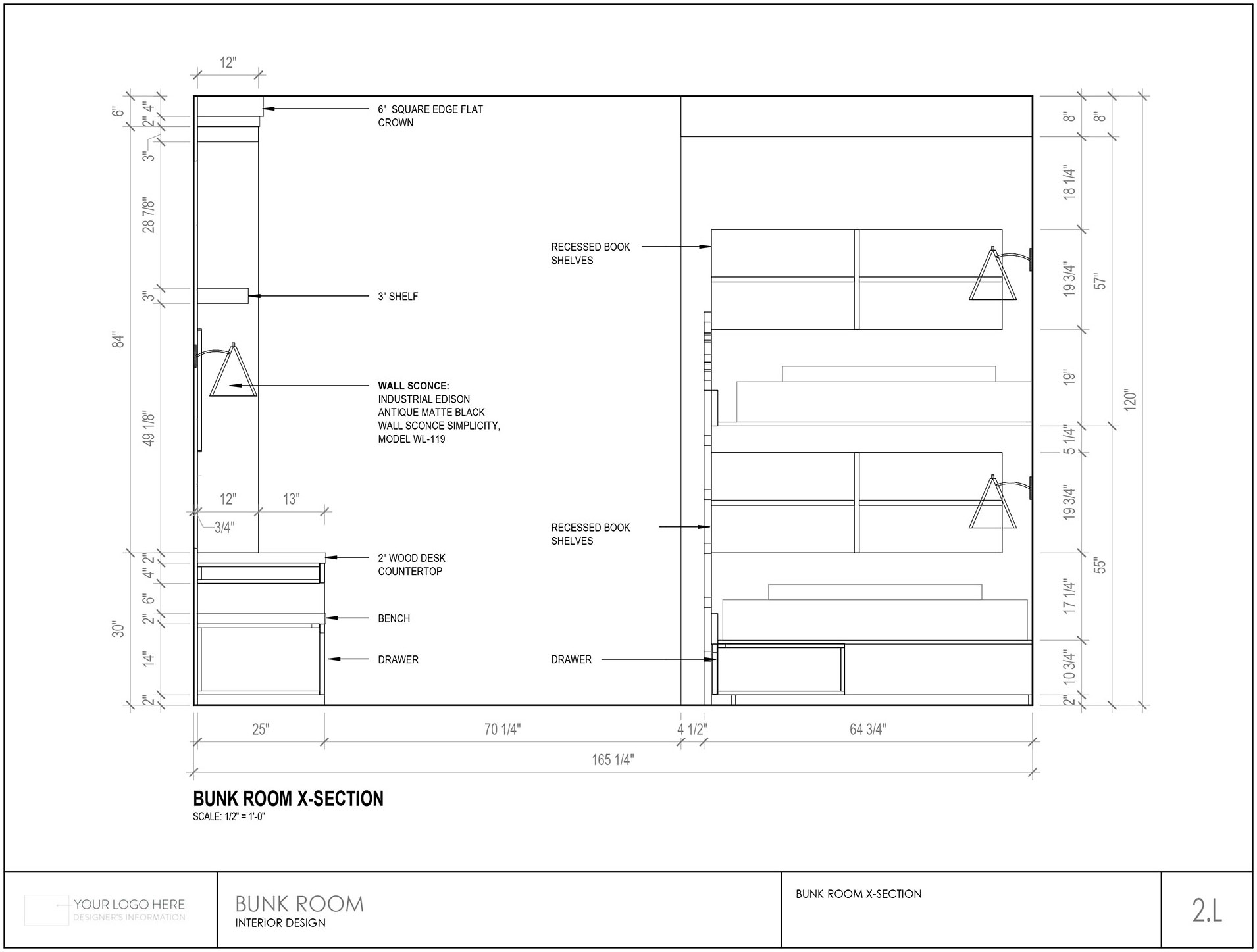
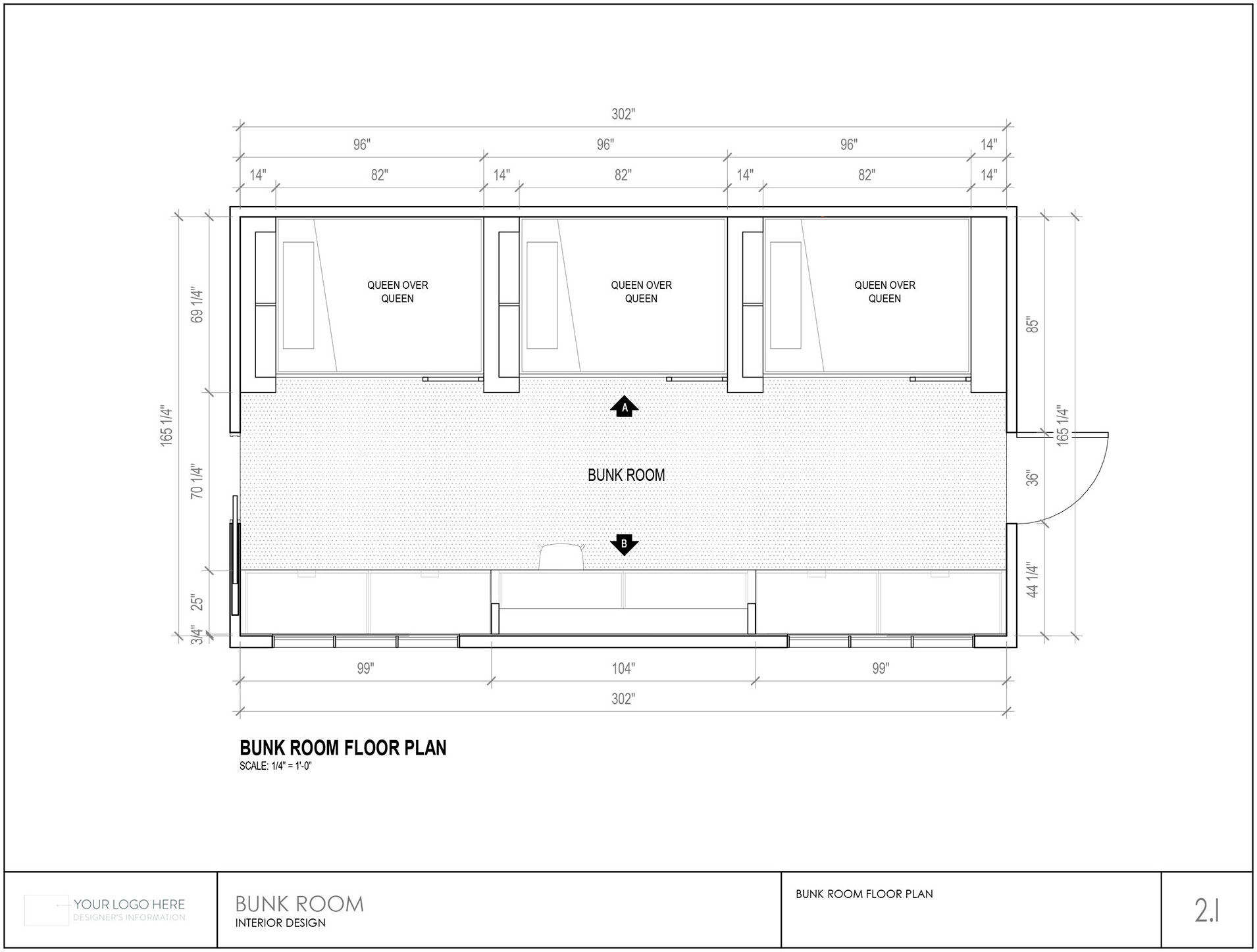
BUNK ROOM
GREAT ROOM
MASTER BATH
BUNK ROOM INTERIOR DESIGN
Specifications, 2D-3D Drawings and Renderings